Dieses GPARK-PFS ist eine kostengünstige Möglichkeit, drei/vier Fahrzeuge auf einem Parkplatz zu parken. Eine Art einfacher Parklifter, geeignet für kommerzielle und private Parkzwecke.
Dieses Modell bietet kompakte Bequemlichkeit und sorgt gleichzeitig dafür, dass geräumigere Garagen einen offenen und frischen Eindruck bewahren.
Der Vier-Säulen-Lift verwendet die beste Verarbeitung, daher verfügt er über die besten Sicherheitsfunktionen der Branche, ist aber der wirtschaftlichste Typ.

1. Vier-Säulen-Mehrebenen-Parksystem mit hydraulischem Antrieb und Seilhebesystem aus Stahl.
2. Automatische Verriegelung auf jeder Plattformstufe zur Gewährleistung der Sicherheit.
3. Drahtseil-Bruchsicherungsvorrichtung erhöht die Sicherheit.
4. Einzelner Parkplatz kann mehrere Parkflächen beherbergen.
5. Die Säulen können miteinander kombiniert und als Drei- bis Zehnfachausführung konzipiert werden, geeignet für Parkhäuser, Händler usw.
6. Stahlteile werden gestrahlt und anschließend mit einer pulverbeschichteten Farbe beschichtet.
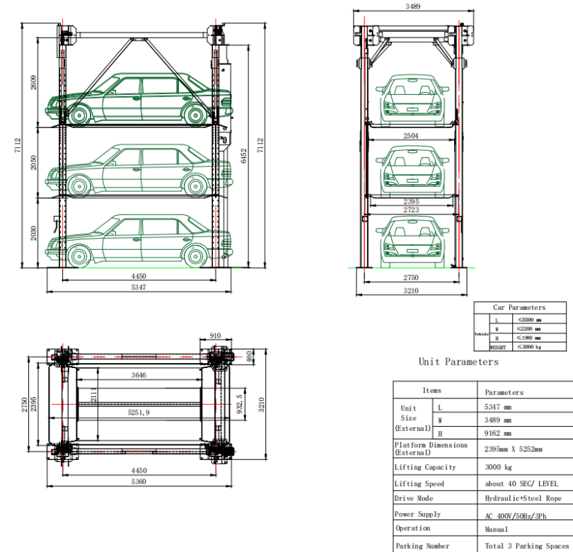
Modell-Nr. |
PFS 30/G+2 |
PFS 30/G+3 |
Antriebsmodus |
Hydraulikzylinder mit Stahlseil |
|
Hebehöhe |
2030mm+2050mm |
2030mm+2050mm+2050mm |
Tragfähigkeit |
3000 kg pro Parkplatz |
|
Außendimension |
5360*3210*7712 mm |
5360*3210*9162 mm |
Sperrung lösen |
Elektrische Freigabe |
|
Mitte der Rollbahn |
Flache Platten |
|
Hebeweschwindigkeit |
ca. 40 s/Stockwerk |
|
Spannung |
110 V, 220 V, 230 V, 380 V/50 Hz, 60 Hz/3Ph, 7,5 kW |
|
Stückzahl im Container |
1 Einheit in 40-Fuß-Container |
|




Copyright © 2024 Qingdao GGLifters Co., Ltd.. , Alle Rechte vorbehalten. Datenschutzrichtlinie